Kieferorthopädie Praxis Biel
Bauherr: Dr. med. dent. Sacha Ryf, Biel
Realisierung: 2013 | 2020
Auftragsart: Wettbewerb
Innenarchitektur: Marcel Baechler, Innenarchitekt vsi.asai.
Bauleitung: Marcel Baechler, Innenarchitekt vsi.asai.
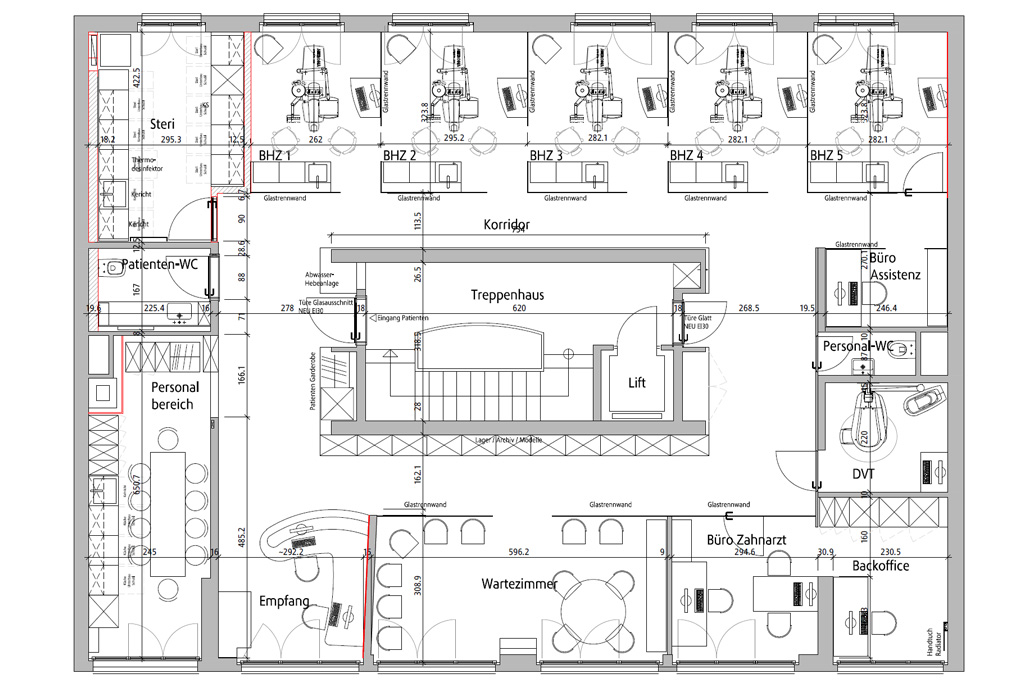
Unsere Aufgabe bestand darin, dass wir im 5. OG eine bestehende Praxis für Kieferorthopädie erneuern und erweitern durften. Wir entschieden uns bereits im Wettbewerb Dr. Ryf eine Etappierung bekannt zu geben. D. h. wir planten die Praxis bereits im Entwurf so um, dass wir die wichtigsten Räume der bestehenden Praxis zuerst im neuen Teil einrichten, sodass wir mit nur einem zweimal 14-tägigen Unterbruch den Umbau realisieren konnten. Im Weiteren zeigten wir bereits im Wettbewerb erste Visualisierungen, um Dr. Ryf von unserer Idee zu überzeugen. Die wichtigste gestalterische Idee war, dass wir der Meinung waren, das es nicht mehr zeitgemäss ist, alle Behandlungseinheiten in einem grossen gesamten Raum unterzubringen, sondern dass jeder Behandlungsplatz einen eigenen Raum erhält. In der Corana-Pandemie 2020-2021 hat sich dieses Konzept sehr bewährt und dank dieser Lösung konnte die Praxis ihren Betrieb mit wenigen Anpassungen ständig aufrechterhalten.
Ästhetisches Design trifft auf überlegene Funktionalität: Die moderne Neukonzeption der gesamten Räumlichkeiten führt die verschiedenen Behandlungsräume, Empfangsbereich, Warten und Büros auf eine überzeugende Art und Weise zusammen.
Die nach viermonatiger Bauzeit entstandenen neuartigen Räume bestechen durch Grosszügigkeit, schlichte, helle Grundmaterialien und eine gekonnte LED-Lichtführung. Die hohe Qualität dieser individuell auf die Bedürfnisse der Zahnärzte zugeschnittene Lösung wurde nicht nur durch die Bauführung sichergestellt, sondern auch durch die sorgfältige Zusammenstellung des Handwerksteams.
Vor- | Nachher (Schieber nach Links und Rechts bewegen)