Direkt zum Seiteninhalt

Gruppenpraxis Grenchen AG - Allgemeine Innere Medizin - Marcel Baechler - Innenarchitektur, Architektur & Praxisplanung

Gruppenpraxis Grenchen AG - Praxis für allgemeine Innere Medizin, Grenchen

Auftraggeber: Gruppenpraxis Grenchen AG
Inhaber/Leitung: Dr. med. Raphaël Tièche
Realisierung: 2023
Auftragsart: Direktauftrag

Standort: im Ärztezentrum Grenchen, 1. OG

Innenarchitektur: Marcel Baechler, Innenarchitekt vsi.asai.
Mitarbeit: Noëlle Baechler, Martina Hofer, Simone Schnee
Bauleitung:
Marcel Baechler, Innenarchitekt vsi.asai.


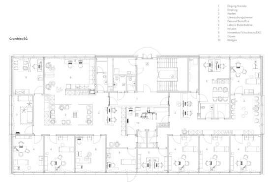
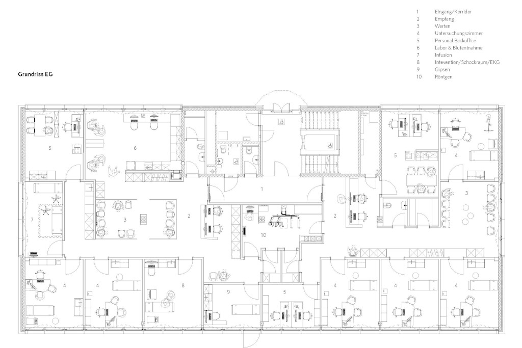
Wir erhielten den Auftrag, im ersten Obergeschoss des neuen Ärztezentrums Grenchen die Gruppenpraxis für allgemeine Medizin zu realisieren. In diesem Projekt waren wir für die gesamte Entwurfs-, Ausführungs-, Sanitär- und Elektroplanung sowie die Bauleitung verantwortlich. Die Arztpraxis ist gemütlich und einladend und strahlt Wärme und Geborgenheit aus. Sämtliche Arbeitsabläufe wurden in enger Zusammenarbeit mit dem Praxisteam abgestimmt und, wo immer möglich, umgesetzt.

Das Interieur ist geprägt von Holzelementen, die eine natürliche und beruhigende Atmosphäre schaffen. Die Wände sind in warmen Farbtönen gestrichen und mit Bildern oder Fotografien von Naturmotiven dekoriert, was zusätzlich zur Entspannung der Patienten beiträgt. In den Wartebereichen im Zentrum der Praxis stehen bequeme Vitra-Sessel, auf denen die Patienten Platz nehmen können. Kleine Tische bieten eine Auswahl an Zeitschriften und Büchern, um die Wartezeit angenehm zu gestalten.

Die Beleuchtung wurde sorgfältig geplant: Mit einer Farbtemperatur von 4000K sorgt sie für eine optimale Balance zwischen Helligkeit und Gemütlichkeit, wodurch eine entspannte Stimmung erzeugt wird. Die Praxis legt grossen Wert auf eine persönliche und freundliche Betreuung, was sich auch in der Gestaltung der Räume widerspiegelt.

Insgesamt strahlt die Arztpraxis eine angenehme und entspannte Atmosphäre aus, die den Patienten das Gefühl gibt, gut aufgehoben zu sein. Durch die durchdachte Planung und Umsetzung ist es gelungen, einen Ort zu schaffen, der sowohl funktional als auch ästhetisch ansprechend ist – ein Raum, in dem sich Patienten wie Mitarbeiter gleichermassen wohlfühlen können.

Visualisierung | Realitätsfoto (Schieber nach Links und Rechts bewegen)
Das Moodboard zur Vermittlung der ersten Gestaltungsideen.
Möbel Detailpläne für die Submission
Vor- | Nachher (Schieber nach Links und Rechts bewegen)
Line
Zurück zum Seiteninhalt